Koolimaja

Arhitektid: KOKO arhitektid koosseisus Raivo Kotov, Lembit-Kaur Stöör, Martin Tago

Sisearhitektid: Raili Paling, Kadri Kaldam, Liis Lindvere

Maastikuarhitektid: Eleriin Tekko, Elina Koel, Katri Soonberg

Ehitus: Merko Ehitus Eesti

🔸🔸🔸

Auhinnad:
2024 Aasta parim puitehitis / Grand Prix

2024 Rae valla heakorrakonkurss "Kaunis kodu 2024" ettevõtete ja asutuste kategooria / 1. koht

🔸🔸🔸

Meie õppehoone valmis 2024. aasta alguses KOKO arhitektide kavandi "Lennuk" järgi.

Rae Gümnaasiumi ehitus- ja sisustustöid rahastati Euroopa Regionaalarengu Fondist ja riigieelarvest. Projekti kogumaksumus on 20 miljonit eurot. 

Hoone on erakordne näide kaasaegsest, funktsionaalsest ja jätkusuutlikust arhitektuurist, mis on suurepäraselt harmoneerunud piirkonna looduskeskkonnaga. Soojad toonid ja harmooniline side loodusega määrasid hoone visuaalse identiteedi, mis saavutati puidu laialdase kasutamisega.

Haljastus on kogu terviku lahutamatu osa, täiendades hoone esteetilist atraktiivsust ja tugevdades selle sidet keskkonnaga. 

➡️Loe edasi KOKO arhitektide kodulehelt siitlink opens on new page.

🎥Vaata videot koolihoonest linnulennult (valminud sügisel 2025) siitlink opens on new page.

 

Fotod: Tõnu Tunnel, KOKO arhitektid

Koolimaja linnulennult

Elevandi aatrium

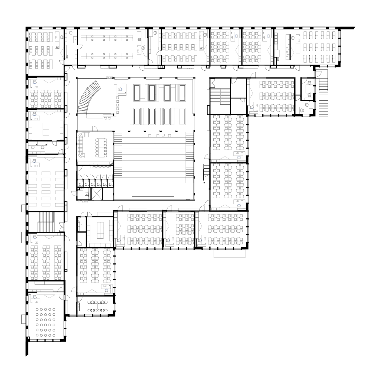
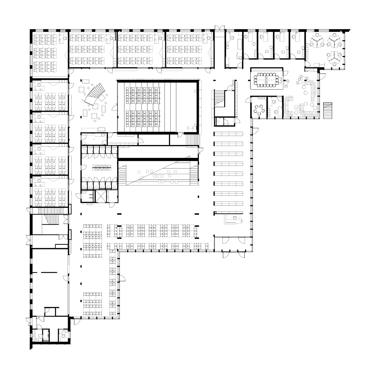
Hoone põhiplaanid

Esimese korruse plaan

Teise korruse plaan

Avaldatud 25.10.2025. Viimati muudetud 06.11.2025.